01.

Ідея
Ми проводимо детальний аналіз території, вивчаємо потреби користувачів та формуємо технічне завдання. Це фундамент майбутніх змін.


Клієнт
Центр правової допомоги
Клієнт
Центр правової допомоги
Клієнт
Центр правової допомоги
Тип
Бізнес-проєкт
Тип
Бізнес-проєкт
Тип
Бізнес-проєкт
Рік
2025
Рік
2025
Рік
2025
Розмір
Розмір
Розмір
Локація
м. Тернопіль, вул. Чорновола 1
Локація
м. Тернопіль, вул. Чорновола 1
Локація
м. Тернопіль, вул. Чорновола 1
Послуги
Розробка проєкту інклюзивності
Послуги
Розробка проєкту інклюзивності
Послуги
Розробка проєкту інклюзивності
Статус
Завершено
Статус
Завершено
Статус
Завершено
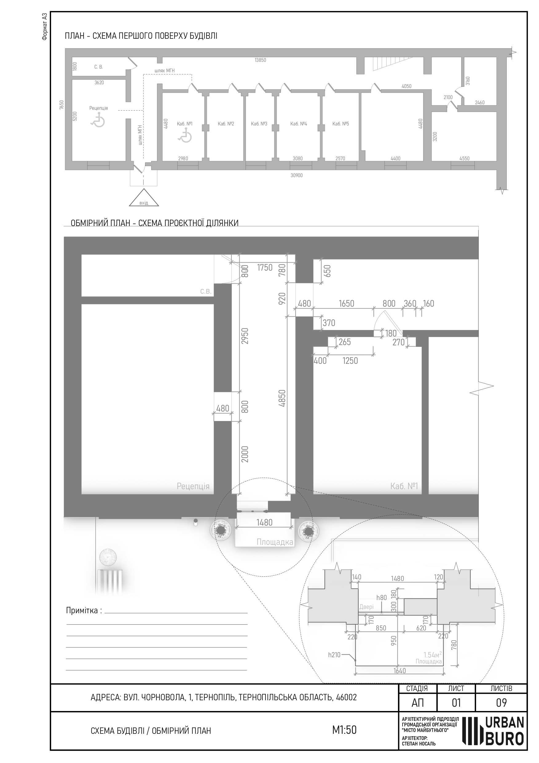
Мета проєкту : забезпечення повного та безбар'єрного доступу для осіб з інвалідністю всіх категорій та ступенів, включаючи людей з порушеннями опорно-рухового апарату та зору.
Архітектурні рішення передбачають адаптацію входу, приміщень загального користування та маршрутів переміщення відповідно до інклюзивних стандартів.
В процесі проєктування були враховані такі аспекти:
Забезпечення зручного пересування маломобільних груп населення;
Доступність основних функціональних зон, входів, комунікаційних шляхів;
Відповідність елементів благоустрою та обладнання ергономічним вимогам;
Формування зрозумілої навігації та візуальних орієнтирів;
Створення комфортного середовища з урахуванням безпеки та інклюзивної взаємодії.















Таймлайн
Таймлайн
Таймлайн
Наша робота включає планується по строках та має декілька етапів.
Наша робота включає планується по строках та має декілька етапів.
01.

Ми проводимо детальний аналіз території, вивчаємо потреби користувачів та формуємо технічне завдання. Це фундамент майбутніх змін.
01.

Ми проводимо детальний аналіз території, вивчаємо потреби користувачів та формуємо технічне завдання. Це фундамент майбутніх змін.
01.

Ми проводимо детальний аналіз території, вивчаємо потреби користувачів та формуємо технічне завдання. Це фундамент майбутніх змін.
02.

Розробляємо візуальне бачення проєкту, зонування та функціональні сценарії. Ви отримуєте перші ескізи та розуміння того, як простір виглядатиме.
02.

Розробляємо візуальне бачення проєкту, зонування та функціональні сценарії. Ви отримуєте перші ескізи та розуміння того, як простір виглядатиме.
02.

Розробляємо візуальне бачення проєкту, зонування та функціональні сценарії. Ви отримуєте перші ескізи та розуміння того, як простір виглядатиме.
03.

Створюємо повний пакет робочої документації: креслення, специфікації матеріалів та кошториси, необхідні будівельникам для точної реалізації.
03.

Створюємо повний пакет робочої документації: креслення, специфікації матеріалів та кошториси, необхідні будівельникам для точної реалізації.
03.

Створюємо повний пакет робочої документації: креслення, специфікації матеріалів та кошториси, необхідні будівельникам для точної реалізації.
04.

Здійснюємо авторський нагляд за будівництвом. Контролюємо якість робіт та відповідність проєкту, щоб результат перевершив очікування.
04.

Здійснюємо авторський нагляд за будівництвом. Контролюємо якість робіт та відповідність проєкту, щоб результат перевершив очікування.
04.

Здійснюємо авторський нагляд за будівництвом. Контролюємо якість робіт та відповідність проєкту, щоб результат перевершив очікування.
05.

Ми не залишаємо проєкт після відкриття. Аналізуємо, як простір живе, збираємо фідбек від користувачів та надаємо рекомендації з догляду.
05.

Ми не залишаємо проєкт після відкриття. Аналізуємо, як простір живе, збираємо фідбек від користувачів та надаємо рекомендації з догляду.
05.

Ми не залишаємо проєкт після відкриття. Аналізуємо, як простір живе, збираємо фідбек від користувачів та надаємо рекомендації з догляду.
Інші проєкти
Інші проєкти
Інші проєкти

Замовлення послуги—надішліть нам своє запитання, і ми будемо раді допомогти!
Замовлення послуги—надішліть нам своє запитання, і ми будемо раді допомогти!
Замовлення послуги—надішліть нам своє запитання, і ми будемо раді допомогти!
команда
Дізнайтесь про наш підхід, філософію та результати в одному документі
команда
Дізнайтесь про наш підхід, філософію та результати в одному документі
команда
Дізнайтесь про наш підхід, філософію та результати в одному документі

Володимир Савченко
СЕО і засновник

Степан Носаль
Архітектор, урбаніст

Степан Носаль
Архітектор, урбаніст

Степан Носаль
Архітектор, урбаніст

Марія Поблінкова
Координатор

Марія Поблінкова
Координатор

Марія Поблінкова
Координатор

Руслан Дашинський
Архітектор, урбаніст

Руслан Дашинський
Архітектор, урбаніст

Руслан Дашинський
Архітектор, урбаніст

В'ячеслав Басюл
Архітектор, урбаніст

В'ячеслав Басюл
Архітектор, урбаніст

В'ячеслав Басюл
Архітектор, урбаніст